“明德致用”是铜仁学院的校训,传承“大学之道,在明明德”的文化精神,体现学校加强思想道德修养与投身社会实践相统一的素质教育理念,又符合当今国家应用型人才培养的先进理念,彰显了培养地方性、应用型人才的办学特色。“百年筑梦”,体现学院始于1920年明德学校的悠久历史,百年春华秋实,百载桃李芬芳,明德气象,正兴未央。
铜仁学院明德校史馆,正是围绕办学百年的辉煌历史,从不同角度,全面展示学校在各个历史时期所创造的、所拥有的、所摘取的高尚荣誉和累累硕果。办学的艰辛、成功的喜悦、历史的荣耀、未来的美好,都将在这座校史馆中一一呈现。
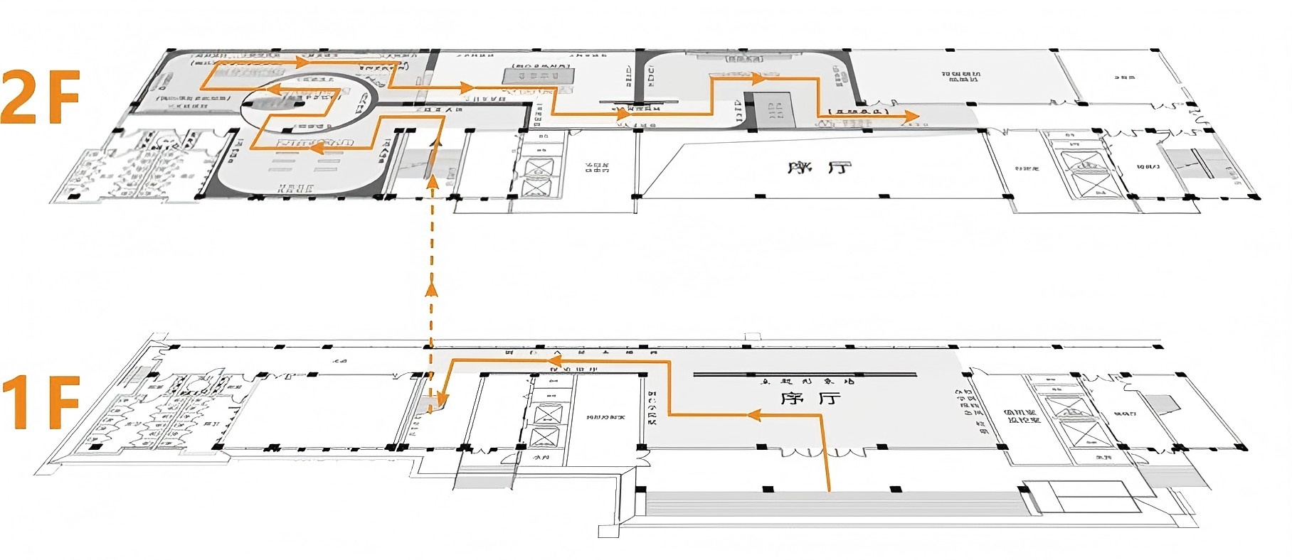
历史(潜心修为 · 深耕厚植)
现状(筑梦远航 · 创新不辍)
成果(充盈丰硕 · 载誉而行)
未来(顺时永进 · 力拓未来)



序厅↑
以武陵山脉和梵净山为核心创意元素,采用新中式设计风格,在武陵山脉的远山背景之下凸显出梵净山的厚重巍峨,体现出学院的地理特色和文脉源起,蕴含着学院师生“厚重、灵性、担当”的大山品格,彰显学院从明德学校时期到铜仁学院至今,跨越百年沉淀出“明德致用”的校训,百年筑梦、百年梦圆。

明德教室 · 情景空间 ↑
以明德中学教室为元素,构建意象化的明德教室情景体验空间。追溯学院历史源起,重温上学时期的青春记忆,坐在课桌前,观看《百年筑梦》主题影片,回顾学院风雨如歌的百年历史。









云南尚客会展有限公司作为一家本土的展览公司,专业提供昆明展览设计和搭建、展厅、博物馆、体验营销、会议会务、主题盛典、厅馆建设、展台设计搭建、展览设计搭建等服务,云南尚客会展有限公司是施工和设计一体化的服务型企业。同时云南尚客会展有限公司在昆明展台搭建公司为参展品牌企业提供详细的昆明展览中心时间表和昆明展会安排等昆明展览馆展会信息,帮助全球品牌企业提供有效的会展搭建解决方案。云南尚客会展有限公司是一家集展览设计、展台搭建、展厅规划、多媒体动画、舞台活动策划、工厂施工为一体的综合性展览公司,本公司分别成立了专项的,展台设计部,展厅设计部,活动策划部,工程部及三维多媒体动画制作部,为展台的设计提供了强有力的技术保障,赢得了众多参展商及主办方的认可。昆明展览公司咨询热线:0871-67186335。
昆明百科 昆明会展中心百科 昆明展览中心官网 昆明会展中心地址 昆明南博会 昆明展台设计 昆明展台搭建 昆明展览工厂 展台搭建公司 昆明展览公司 云南展台搭建 云南展示制作 昆明展览制作工厂 昆明展厅设计 昆明展馆设计 云南展厅设计 云南展馆设计





